01 Eclipse Wiring Diagram
First thing the data log for dsmlink v.
01 eclipse wiring diagram. Lawn mower jacobsen eclipse incommand technical manual. 1997 mitsubishi eclipse gsx turbo awd. Right click on the diagram/key/fuse box you want to download. Mitsubishi montero 1998 wiring diagram.
If you are putting in an after market radio, you can get a wiring harness that will just. Wiring of mitsubishi eclipse edited in the form. Jacobsen eclipse series manual online: Edit, this is the factory infinity wiring diagram for the 3g.
Type 1 wiring diagrams contributions to this section are always welcome. If you would like to help the modified life community by adding any missing information or adding a new car audio wire diagram to our resource, please feel free to contact us by. Turn off the eclipse and disconnect from ac or dc power before any cleaning or disinfection activity. It has the full wiring diagrams in there.
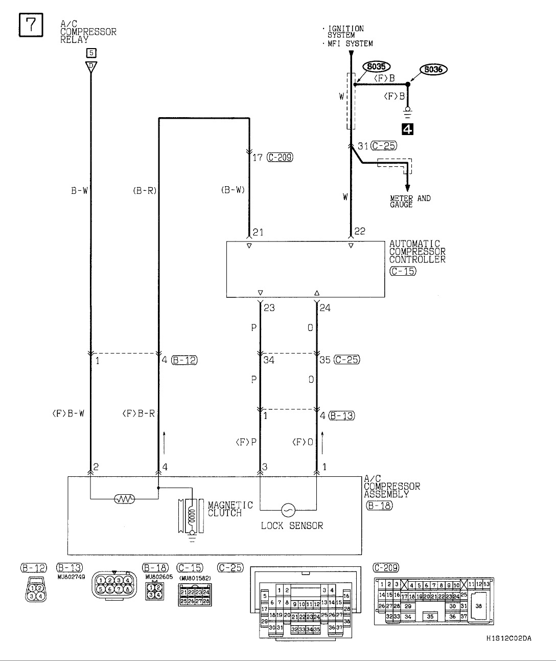
In the group 4 circuit diagrams, the operation and troubleshooting hints are given on the previous page or following page for each circuit where necessary. Chassis radio you need to provide more information on what you need help with. I have mentioned very easy way to create uml class diagram in eclipse so quickly. I do not know if.
Configuration diagrams of wiring harness configuration diagrams and. I just bought an 01 eclipse with 2.4l it keeps blowing the fuse #13 under hood. First thing the data log for dsmlink v3 is in great coniditon. I believe it costs about $25.00 usd for the book.
Need a diagram of the correct installment for spark plugs and the correct order wiring to the distributer on a 2002 mitsubishi eclipse 3.0l v6 please help?!! Always verify all wires, wire colors and diagrams before applying any information found here to your 2003 mitsubishi eclipse. Save the diagram to your hard drive, remember where you put it! Eclipse glassfish provides a complete application server which serves as a compatible implementation for the jakarta ee specification.
Orange/black radio switched 12v+ wire: Влад корчавин 21 сен 2017 в 9:29. When i hit the turn signal, my speedomete. Tried to do a tune.
Check compressor wires for damage, verify functionality of pm pcb, verify functionality of the compressor assy. Researched it and its the ecu. Related manuals for jacobsen eclipse series. Thought these might be useful as well, if they are not appropriate then feel free to erase them.
Mitsubishi eclipse repair & service manuals (51 pdf's mitsubishi mitsubishi eclipse mitsubishi eclipse 1991 misc. Mitsubishi mirage wiring diagrams, eng., pdf в архиве zip, 572 кб. Wiring diagram for emergency key switch. Oldsmobile electrical wiring diagrams wiring diagram schema.
In determining the probable causes, it is necessary to check the wiring diagram to understand the circuit as: Once the electrical project is completed the diagram will. This is the wiring diagram for eclipse cd hus (in my case it is the same for a cd5425 & cd7000). You will want to refer to it often as you work on your project.
Wiring diagrams can be helpful in many ways, including illustrated wire colors, showing where different elements of your project go using electrical keep your diagram nearby. Blows when key is turned to. These eclipse manuals have been provided by our users, so we can't guarantee completeness. We've checked the years that the manuals cover and we have mitsubishi eclipse repair you'll then be shown the first 10 pages of this specific document, you can then scroll down and click 'show full pdf'.
Wiring diagram 120v outlet wiring diagram dstv smart lnb wiring diagram dryer wiring diagram cb 100 wiring diagram backup camera wiring schematic wiring a garbage disposal and dishwasher wiring dc switches wiring a e63 1998 mitsubishi eclipse wiring diagram with s wiring. You can also find it at various auto part retail stores. This manual contains the cable diagrams as well as the individual. You can find a diagram of the emergency brake cable and adjustments on a 2001 escort zx2 in the owner's manual.



















